Detailed design & construction drawings
Once the concept design is agreed and planning approval is secured, the next step is to transform ideas into detailed technical drawings that can be built accurately and confidently. Our detailed design and construction drawings provide your builder with all the information needed to deliver the project exactly as intended while ensuring full compliance with Irish building regulations.
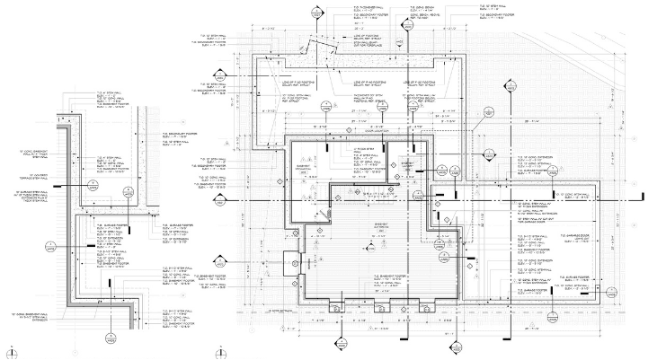
What Detailed Design Drawings Include
These drawings go beyond planning requirements and provide comprehensive guidance for construction. They include:
Compliance with Irish Building Regulations
Our drawings ensure alignment with the Building Regulations in Ireland, including Part A for structure, Part B for fire safety, Part L for conservation of fuel and energy, and Part M for access and use. This ensures that your project is not only visually appealing but also safe, efficient, and durable.
Benefits for Homeowners
For homeowners, detailed design and construction drawings provide peace of mind that a new build, extension, or renovation will be executed to the highest standard. For developers and commercial clients, they provide contractors, engineers, and subcontractors with a clear and coordinated set of instructions, making the build process more efficient and cost effective.
A Collaborative Approach to Construction
We take a thorough and collaborative approach, working closely with engineers, consultants, and contractors to ensure every aspect of the design is practical, achievable, and ready for construction. With the right level of detail, your project can move smoothly from concept to reality, giving you confidence at every stage.
What Detailed Design Drawings Include
These drawings go beyond planning requirements and provide comprehensive guidance for construction. They include:
- Precise dimensions and construction details
- Materials, finishes, and specifications
- Structural layouts and foundation details
- Insulation, ventilation, and fire safety measures
- Performance standards and building regulations compliance
Compliance with Irish Building Regulations
Our drawings ensure alignment with the Building Regulations in Ireland, including Part A for structure, Part B for fire safety, Part L for conservation of fuel and energy, and Part M for access and use. This ensures that your project is not only visually appealing but also safe, efficient, and durable.
Benefits for Homeowners
For homeowners, detailed design and construction drawings provide peace of mind that a new build, extension, or renovation will be executed to the highest standard. For developers and commercial clients, they provide contractors, engineers, and subcontractors with a clear and coordinated set of instructions, making the build process more efficient and cost effective.
A Collaborative Approach to Construction
We take a thorough and collaborative approach, working closely with engineers, consultants, and contractors to ensure every aspect of the design is practical, achievable, and ready for construction. With the right level of detail, your project can move smoothly from concept to reality, giving you confidence at every stage.

Contact
Get in Touch.
Contact Us
Whether you have questions about our services, need support, or want to share your feedback, our dedicated team is here to assist you every step of the way.
Website


